Project #1269
3.74MW DC/2.5MW AC; Rooftop; 154 Strings; 18/19 Modules per string. It consists of 7,000 Trina solar modules with 20 Chint Power inverters.
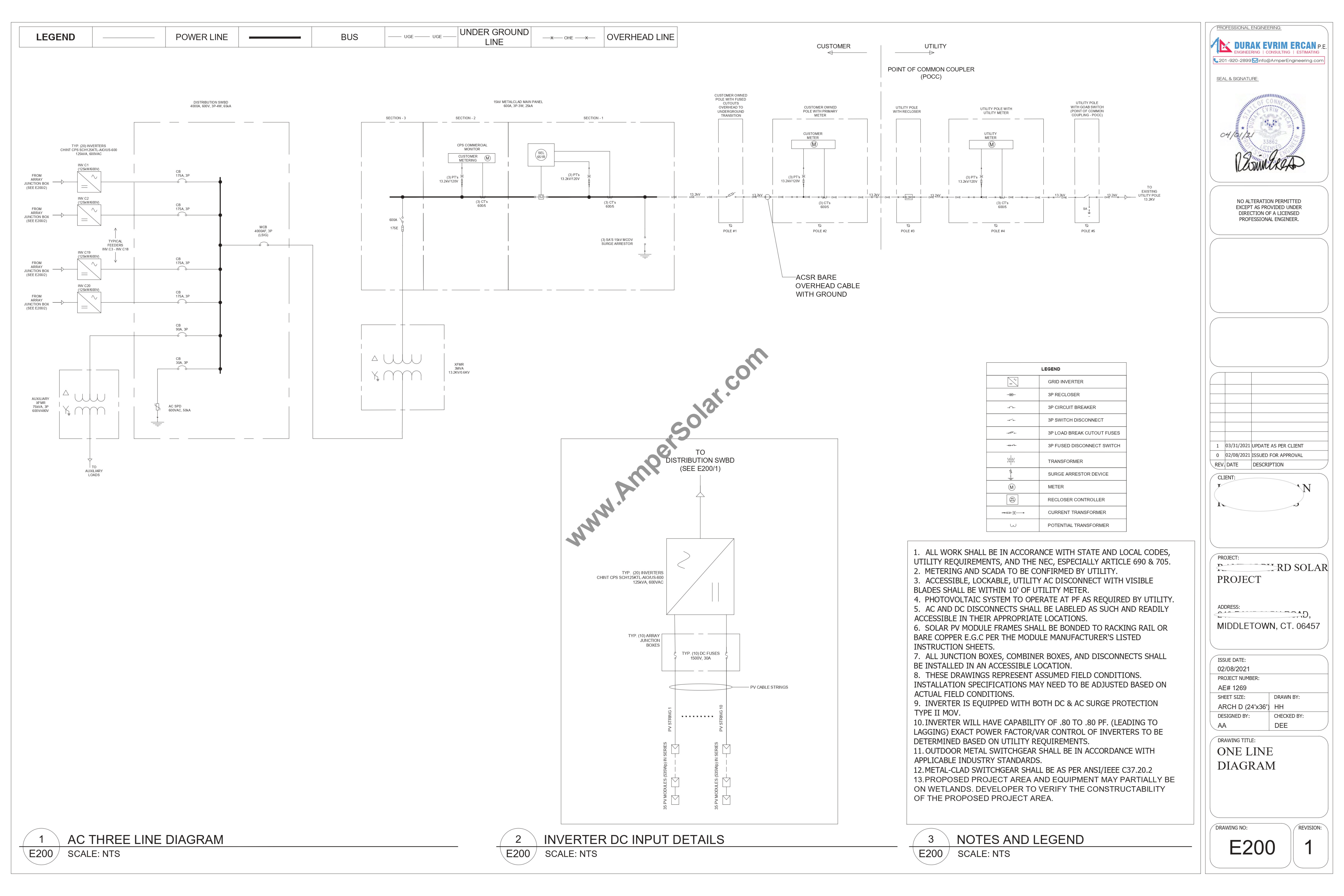
This project is a utility-scale ground-mounted solar PV grid-interconnected system. 13.2kV AC was provided to the utility with underground cable within the project area to tie to the existing overhead line at POI to comply with NEC and local electric company protection and safety switch requirements.
