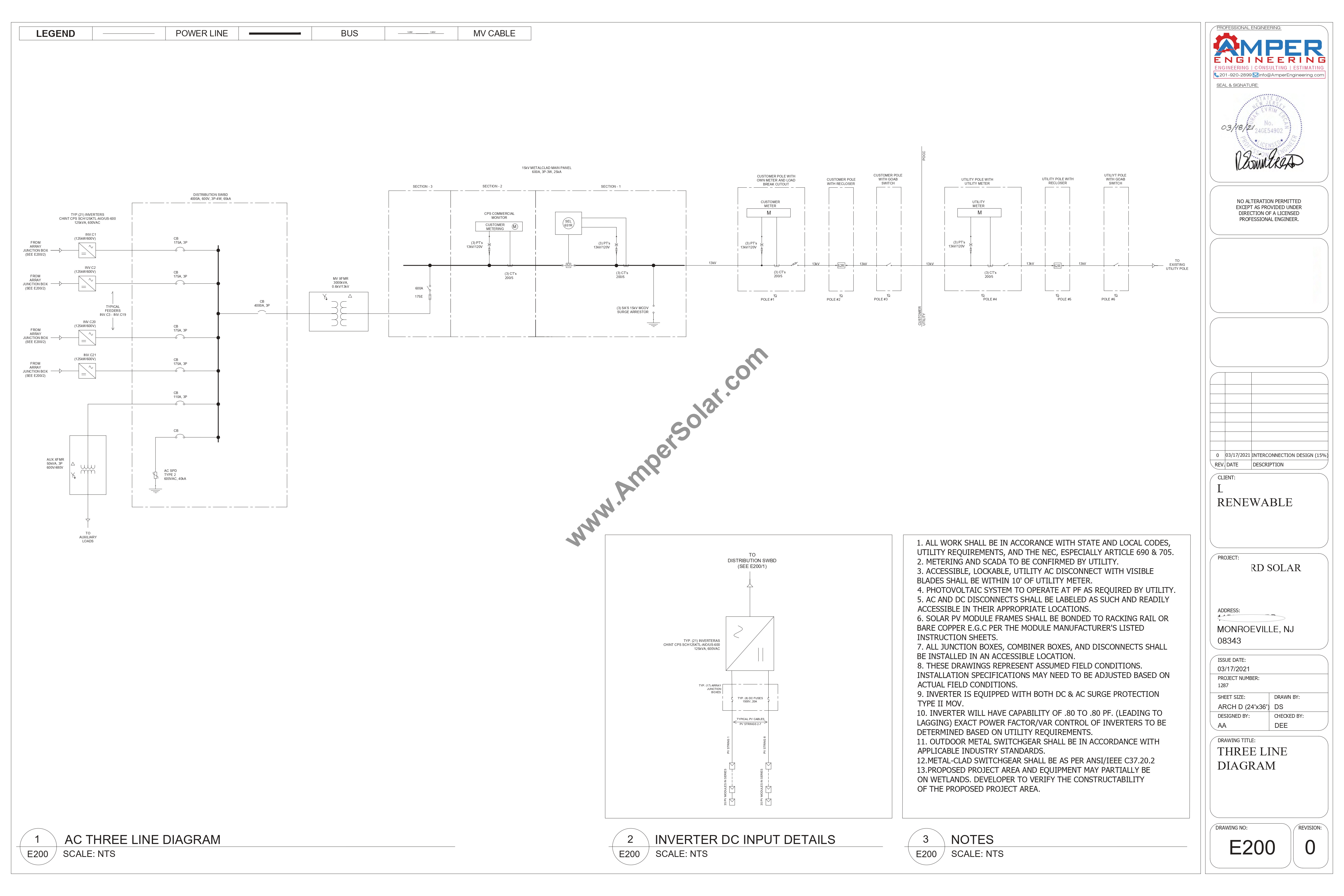
Project #1287
3.08MW DC/2.62MW AC; Ground Mount; 165 Strings; 35 Modules per string. It consists of 5,775 Trina solar modules with 21 Chint Power inverters.
The project was designed for east-west tracking. 13kV AC was provided to the utility with underground cable within the project area to tie to the existing overhead line at POI to comply with NEC and local electric company protection and safety switch requirements.
